Zurbano
2022
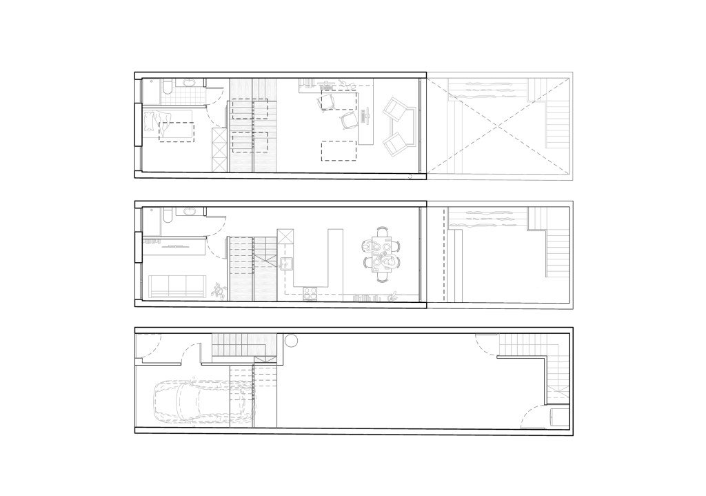
Uns clients joves s’han comprat una petita casa entre mitgeres a Cerdanyola amb l’objectiu de rehabilitar-la i augmentar fins a culminar la volumetria permesa a canvi de regularitzar la part que està fora d’ordenació construïda a l’interior d’illa. Però l’Ajuntament de Cerdanyola no accepta la rehabilitació i obliga a enderrocar el 100% de la casa si es vol obtenir llicència. Per no entrar en discussions amb l’ajuntament i allargar anys el procés, s’acata la imposició irracional de l’arquitecta municipal i s’enderroca tota la casa. El projecte és molt senzill, hi ha una necessitat de mantenir tota la planta baixa com a aparcament perquè el propietari col·laciona 4Ls. A més es permet fer un pati en planta primera (tot i que obliguen a fer-ho inaccessible perquè t’obliguen fer-lo a cota inferior de la planta primera) i així el gran espai cuina-menjador està vinculat directament al pati que està a sud. Hi ha una escala central de 2 trams oberta que connecta les 3 plantes i també serveix per baixa llum i ventilació des de la coberta. A l’altra banda de l’escala hi ha la sala d’estar, i al segon pis l’habitació i estudi. S’ha buscat plantes molt lliures i senzilles i no fer gaires particions transversals per afavorir possibles canvis. Constructivament, s’ha optat per termoargila per rapidesa d’execució i per la resistència al foc en ser entre mitgeres.







