Casa Premià
2019-2020
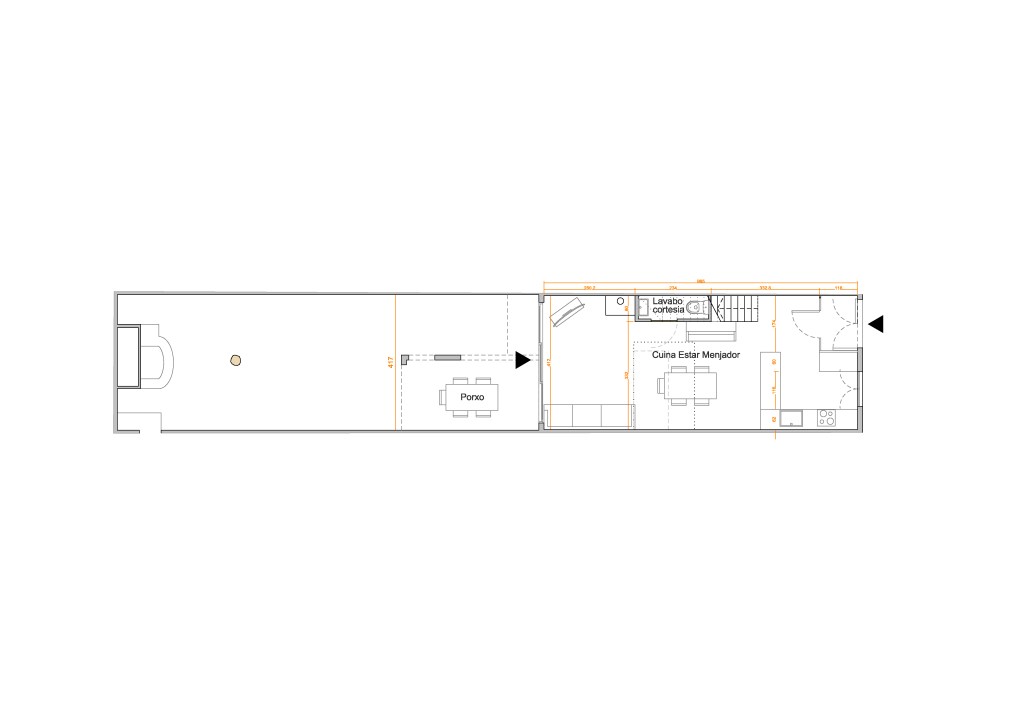
La casa de Premià és una rehabilitació integral d’una antiga casa de cos barata al nucli antic de Premià de Mar. Té una amplada de 4,1m, molt típic. Inicialment, tenia tot de volums disconformes al pati, també molt típic. Tant per voluntat dels clients com imperatiu normatiu, calia enderrocar tots els volums disconformes per poder fer l’obra. El projecte es basa en obrir un pati de llum i ventilació cobert al mig de la casa que permet portar llum i ventilació natural des del mig, de dalt a baix, alhora que es reorganitza l’escala. A la PB s’opta per fer un sol gran espai que acull tota l’activitat diürna i que es connecta amb el jardí. De fet, la casa ha perdut força superfície coberta en PB a favor d’augmentar el jardí, fet que dona molt més valor afegit. A les plantes superiors, hi ha una distribució molt senzilla amb el plus dels altells que es construeixen aprofitant l’augment d’alçada de la teulada a 2 aigües.













