Casa Bellaterra

2015-2018

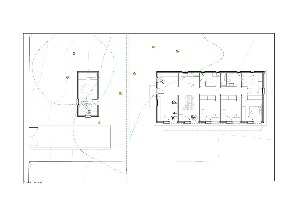
La Casa Bellaterra neix de la necessitat dels meus pares de tenir una casa nova amb un pressupost extremadament baix, molt ràpid, i uns desitjos elevats, i també del meu entusiasme. Calia fer un projecte senzill, molt ràpid, molt barat i que agradés als clients. Per fer-ho es va simplificar extremadament i es van buscar solucions no 2×1, sinó, 3×1 o 4×1. El paviment, per exemple, és paviment de formigó polit, que alhora és la solera, que és el terra radiant que és la fonamentació. O Les parets, que són de fusta de CLT vista amb qualitat “no vista” i que es va deixar tal qual un cop muntat directament des del camió. Es va suprimir totes les fusteries dels vidres fixes per col·locar els vidres directament sobre els tancaments (sense marc), fet que va estalviar molts diners i permetre guanyar captació solar… La Casa Bellaterra és un exemple de simplicitat tècnica, sense renunciar a cap demanda tècnica ni de confort. És una casa passiva que ha permès estalviar als usuaris un 98% de l’energia en climatització respecte la seva casa anterior, a un preu de només 670€/m2 i construïda en només 4 mesos.