Ametlla

2022-2023

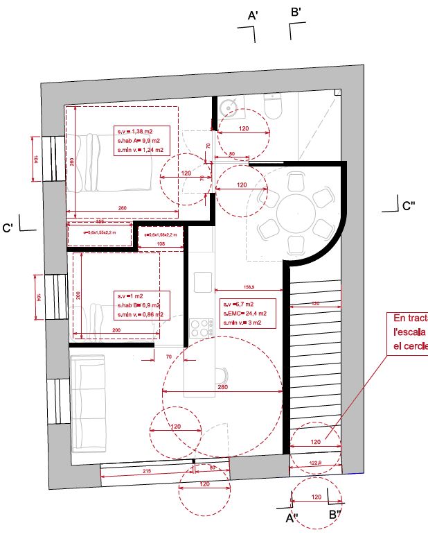
Aquest habitatge plurifamiliar és un remunta sobre una preexistència destinat al lloguer turístic buscava maximitzar la capacitat d’apartaments llogables, alhora que mantenir una qualitat espaial. L’element central del projecte és l’escala de cargol que travessa l’edifici de duent llum i ventilació de dalt a baix i en contacte amb l’exterior. Són apartaments de platja, per tant és molt important poder respirar aquest ambient de mar així que surt de l’habitació i no estar en un espai de poca qualitat interior. A més a més que així es pot generar ventilació creuada de forma fàcil. El projecte, senzill, busca optimitzar els espais per fer-los fluir harmònicament amb la planta preexistent, que és força restrictiva, alhora que maximitzar les places. Tot i que hi ha diverses concessions a favor de la qualitat i no la quantitat, com la piscina interior aprofitada de l’antic aljub, o la terrassa de l’àtic.