Aiguafreda
2021
amb Helena Armengol Biosca
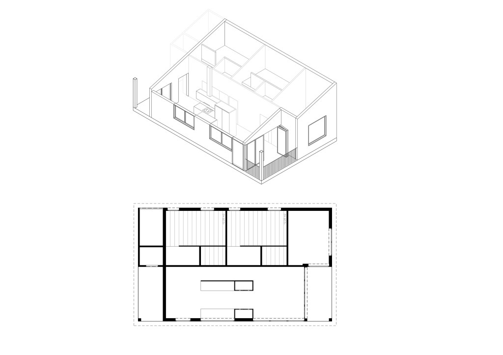
Aquest projecte és una col·laboració amb la col·lega Helena Armengol Biosca. Els seus pares tenen un terreny a Sant Martí de Centelles en una urbanització de baixa densitat al mig del bosc i en una zona força muntanyosa. L’objectiu és fer-hi una petita casa que es converteixi en primera residència per poder viure en un entorn no urbà amb la qualitat de vida que suposa això. La casa ha de ser, inicialment, continguda. El programa principal és per viure-hi un matrimoni adult, però amb espai per acollir puntualment les seves 2 filles amb les parelles i possibles futurs néts. L’objectiu és fer una casa amb el mínim impacte ambiental. Per això es farà una casa sobre pilotis per minimitzar el contacte amb el terra i la solera de formigó armat, a més a més del terreny molt complicat. Tota la casa serà de fusta: estructura, tancaments i particions. A més a més, els nivells d’aïllament tèrmic, són superiors als que demana la normativa, i s’ha buscat optimitzar l’orientació solar respecte les vistes. El fet de construir amb fusta, a més permetrà agilitzar molt la construcció.




